Skip to content
Menu
Szolgáltatások
Home staging
Rólam
Referenciák
Home staging referenciák
Lakberendezés referenciák
Kapcsolat
Aktuális munkák
Árak
Home Staging Árak
Lakberendezés árak
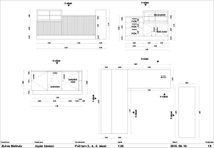
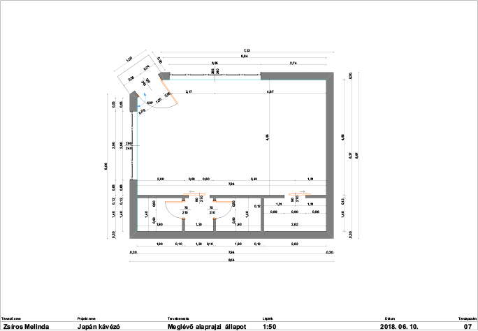
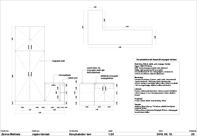
Japán stílusú kávézó tervek